Nieuw in verhuur:Janssteeg 6, 6811 GC Arnhem - Foto
Nieuw in verhuur
+13

Janssteeg 6 6811 GC Arnhem € 2.325,- /mnd

  • Appartement
  • 3 kamers
  • 2 slaapkamers
  • 2 badkamers
  • Bouwjaar 1998
  • 120 m² gebruiksoppervlakte
  • Gemeubileerd
  • A Energielabel A

Beschrijving

Waar vind je in hartje centrum van Arnhem een gemeubileerde woning met twee royale slaapkamers en een ruime garage? Met alle faciliteiten, de leukste restaurantjes om de hoek maar toch rustig gelegen?

Bent u op zoek naar een dergelijke woning dan is dit wellicht uw ideale corporate apartment!

Deze luxe uitgevoerde gemeubileerde bovenwoning met 2 slaapkamers, patio en ruime garage is vrij uniek, zowel qua ligging als in afwerking.

De woning is gelegen op loopafstand van het centraal station (rechtstreekse verbinding met Amsterdam), winkels, bioscoop, restaurants en cafés.
Diverse uitvalswegen zijn uitstekend bereikbaar. De bewoner kan een ontheffing aanvragen voor de binnenstad om zo direct aan te rijden op de inpandige parkeergarage.

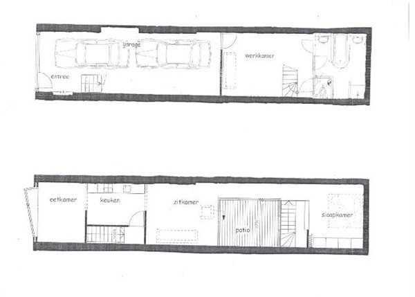
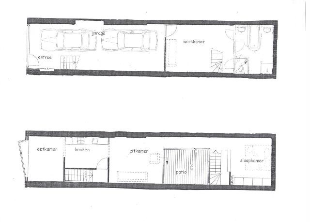
Indeling:
Begane grond:
Entree, ruime garage met automatische deuren en luchtzuiveringssysteem.
Toegangsdeur naar trap welke leidt naar de woonverdieping. Op de begane grond is nog een tweede ingang die uitkomt in de beneden gelegen ruime ouderslaapkamer en op dit niveau bevindt zich ook de badkamer met royaal ligbad, toilet, inloopdouche en dubbel wastafelmeubel. Een interne trap leidt naar de eerste verdieping.

Ruime woonkamer voorzien van houten vloeren, luxe open keuken met natuurstenen blad en voorzien van Atag apparatuur, waaronder een vaatwasser, 5-pits gaskookplaat, afzuigkap, koel/vriescombinatie en combi oven. Doorloop naar de 2e slaapkamer voorzien van ruime kastenwand, voorzien van een eenpersoonsbed, maar wat eventueel kan worden vervangen door een tweepersoonsbed.
Midden in het appartement is op speelse wijze een patio gerealiseerd welke via een schuifdeur bereikt wordt . Hier kan je in alle rust genieten van de zomeravonden.

Bijzonderheden:
- Energielabel A;
- De woning is volledig en zeer smaakvol gemeubileerd;
- Twee ruime slaapkamers;
- Badkamer met inloopdouche, dubbel wastafelmeubel en royaal ligbad;
- Ruime garage;
- Midden in het centrum van Arnhem gelegen;
- Zeer luxe afwerking;
- Voorzien van dubbele beglazing;
- Woonoppervlakte (120 m²) is exclusief de garage;
- Beschikbaar voor langere periode.

Exclusief g/w/e, tv, internet en lokale heffingen.

Wanneer u geinteresseerd bent in deze woning, kunt u via onze website www.blinqmakelaars.nl een bezichtiging inplannen.

Kaart

Kenmerken

Overdracht

Referentienummer
00517
Huurprijs
€ 2.325,- per maand (gemeubileerd, gestoffeerd, geïndexeerd)
Borg
€ 4.650,-
Inrichting
Ja
Inrichting
Gemeubileerd
Status
Nieuw in verhuur
Aanvaarding
In overleg
Beschikbaar vanaf
Maandag 2 februari 2026
Beschikbaar tot
Maandag 31 januari 2028
Aangeboden sinds
Woensdag 7 januari 2026

Bouw

Type object
Appartement, bovenwoning
Woonlaag
1e woonlaag
Soort bouw
Bestaande bouw
Bouwperiode
1998
Type dak
Platdak

Oppervlaktes en inhoud

Woonoppervlakte
120 m²
Inhoud
310 m³

Indeling

Aantal bouwlagen
2
Aantal kamers
3 (waarvan 2 slaapkamers)
Aantal badkamers
2 (en 1 apart toilet)

Locatie

Ligging
Aan rustige weg
Dichtbij openbaar vervoer
In centrum

Energieverbruik

Energielabel
A

Uitrusting

Aantal parkeerplaatsen
1
Aantal overdekte parkeerplaatsen
1
Badkamervoorzieningen Badkamer 1
Inloopdouche
Ligbad
Wastafel
Wastafelmeubel

Media

Plattegronden