Onder bod:Byblisstraat 6, 6846 XE Arnhem - Foto
Onder bod
+14

Byblisstraat 6 6846 XE Arnhem € 449.500,- k.k.

  • Woonhuis
  • 3 kamers
  • 2 slaapkamers
  • 1 badkamers
  • Bouwjaar 2014
  • 118 m² perceeloppervlakte
  • 107 m² gebruiksoppervlakte
  • A Energielabel A

Beschrijving

Jouw droomwoning in Schuytgraaf – ruimte, comfort en bereikbaarheid perfect gecombineerd!

Welkom in deze ruime en instapklare eengezinswoning met zonnige tuin, gelegen in de geliefde en kindvriendelijke wijk Schuytgraaf in Arnhem. Een ideale plek voor gezinnen die op zoek zijn naar comfort, rust én uitstekende voorzieningen binnen handbereik.

Deze woning biedt volop leefruimte en is gelegen in een fraai opgezette kindvriendelijke woonomgeving met speelvoorzieningen en een prettige dorpssfeer. De achtertuin ligt gunstig op het zuiden en beschikt over een vrijstaande houten berging en extra brede, elektrisch bedienbare poortdeuren.

Ligging & wijk Schuytgraaf

Schuytgraaf staat bekend als een moderne, ruim opgezette wijk met veel aandacht voor duurzaamheid, groen en leefbaarheid. De wijk is bijzonder populair bij gezinnen dankzij de veilige woonstraten, diverse speelplaatsen en uitstekende voorzieningen.

Op loopafstand bevinden zich het winkelcentrum met onder andere een supermarkt, gezondheidscentrum, kinderopvang, sportfaciliteiten en een multifunctioneel centrum. Ook de Rivers International School ligt op korte loopafstand, wat deze woning extra aantrekkelijk maakt voor (internationale) gezinnen.

Daarnaast is Schuytgraaf zeer gunstig gelegen ten opzichte van uitvalswegen (A325 en A50), openbaar vervoer (treinstation Arnhem Zuid en busverbindingen) en het bruisende stadscentrum van Arnhem. Binnen enkele minuten ben je bovendien in het buitengebied of de uiterwaarden van de Rijn voor een heerlijke wandeling of fietstocht.

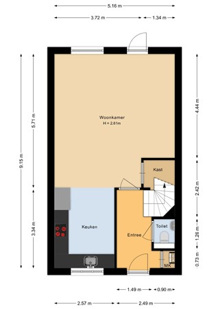
Indeling

Begane grond
Via de entree/hal met meterkast en modern toilet betreed je de ruime en lichte woonkamer. Dankzij de openslaande deuren naar de tuin geniet je hier van veel lichtinval en een directe verbinding met buiten.
De open keuken is voorzien van een granieten aanrechtblad, vaatwasser, keramische kookplaat met afzuigkap en een losse Amerikaanse koelkast.
De gehele begane grond is afgewerkt met een nette tegelvloer en voorzien van comfortabele vloerverwarming.

Eerste verdieping
Op deze verdieping bevinden zich twee royale slaapkamers en een moderne badkamer met douchecabine, tweede toilet en een strak wastafelmeubel. Ook hier is vloerverwarming aanwezig voor extra comfort.

Tweede verdieping
De ruime zolderverdieping biedt volop mogelijkheden. Met eenvoudige aanpassingen is hier een volwaardige derde slaapkamer te realiseren. De verdieping beschikt over een witgoedaansluiting en geniet van veel daglicht dankzij twee dakramen.

Bijzonderheden:

-3 slaapkamers (waarvan 1 eenvoudig te realiseren op zolder)
- Energielabel A
- Vloerverwarming op de begane grond en in de badkamer
- Ruime, zonnige tuin op het zuiden
- Vrijstaande houten berging
- Extra brede, elektrisch bedienbare achterpoort
- Gelegen in de populaire wijk Schuytgraaf
- Nabij internationale school en alle dagelijkse voorzieningen

Kortom: een comfortabele, energiezuinige gezinswoning op een uitstekende locatie waar wonen, werken en ontspannen perfect samenkomen. Een woning die je gezien móét hebben!

Koopovereenkomst:
Bij de verkoop wordt de standaard VBO koopovereenkomst gehanteerd. Indien nodig zal er een clausule worden opgenomen waaruit blijkt dat de verkoper niet de bewoner van de woning is geweest. Bij woningen welke ouder zijn dan 20 jaar, worden de asbestclausule en de ouderdomsclausule standaard opgenomen;

De bovengenoemde informatie hebben wij met de grootste zorg en de nodige zorgvuldigheid samengesteld. Onzerzijds wordt er echter geen enkele aansprakelijkheid aanvaard voor enige onvolledigheid, onjuistheid, omissie of anderszins, alsook voor de eventuele gevolgen daarvan. Alle opgegeven maten zijn zorgvuldig en professioneel opgenomen, maar wel indicatief.

Wanneer u geïnteresseerd bent in deze woning, dan kunt u zich aanmelden via de site www.blinqmakelaars.nl
Voor vragen kun je telefonisch contact opnemen met ons kantoor met telefoonnummer 026-7114555.

Kaart

Kenmerken

Overdracht

Referentienummer
00530
Vraagprijs
€ 449.500,- k.k.
Inrichting
Niet gestoffeerd
Inrichting
Niet gemeubileerd
Status
Onder bod
Aanvaarding
In overleg
Aangeboden sinds
Vrijdag 30 januari 2026
Laatste wijziging
Woensdag 11 februari 2026

Bouw

Type object
Woonhuis, eengezinswoning, tussenwoning
Soort bouw
Bestaande bouw
Bouwperiode
2014
Dakbedekking
Dakpannen
Type dak
Zadeldak

Oppervlaktes en inhoud

Perceeloppervlakte
118 m²
Woonoppervlakte
107 m²
Inhoud
386 m³

Indeling

Aantal bouwlagen
3
Aantal kamers
3 (waarvan 2 slaapkamers)
Aantal badkamers
1 (en 1 apart toilet)

Locatie

Ligging
Aan rustige weg

Tuin

Type
Voortuin
Oriëntering
Noorden
Staat
Normaal
Tuin 2 - Type
Achtertuin
Tuin 2 - Hoofdtuin
Ja
Tuin 2 - Oriëntering
Zuiden
Tuin 2 - Staat
Normaal

Energieverbruik

Energielabel
A

Uitrusting

Aantal parkeerplaatsen
1
Ventilatie methode
Mechanische ventilatie
Tuin aanwezig
Ja
Heeft schuur/berging
Ja
Heeft ventilatie
Ja

Kadastrale gegevens

Kadastrale aanduiding
Arnhem AF 3317
Perceeloppervlakte
540 m²
Omvang
Deel perceel
Kadastrale aanduiding
Arnhem AF 3333
Perceeloppervlakte
118 m²
Omvang
Geheel perceel
Eigendomsituatie
Eigen grond

Media

Foto's

Video

Plattegronden