Verkocht onder voorbehoud:Emmastraat 16-1, 6828 HE Arnhem - Foto
Verkocht onder voorbehoud
+36

Emmastraat 16-1 6828 HE Arnhem € 245.000,- k.k.

  • Appartement
  • 6 kamers
  • 3 slaapkamers
  • Bouwjaar 1880
  • 65 m² gebruiksoppervlakte
  • C Energielabel C

Beschrijving

Karaktervolle bovenwoning met prachtig uitzicht, veel licht en volop potentie! LET OP, MAAR LIEFST RUIM 90 M2 BRUIKBARE (WOON)OPPERVLAKTE!

Welkom aan de Emmastraat 16-1: een ruime bovenwoning uit 1880 verdeeld over drie verdiepingen, gelegen in een voormalig pakhuis in het geliefde Spijkerkwartier bekend om haar mooie herenhuizen, op de eerste, tweede en derde etage. Een woning met karakter, een zee aan licht en een uitzicht om van te dromen – met zicht over de wijk en richting de iconische Eusebiuskerk.

Woning met historie én toekomst

Deze bovenwoning biedt een unieke combinatie van ruimte, licht en flexibiliteit. De woning is toe aan modernisering, maar de basis is uitstekend en desgewenst is de woning direct te betrekken: originele ornamenten, veel raampartijen én een indeling die tal van mogelijkheden biedt. De woning is ideaal voor het onderbrengen van uw studerend kind tezamen met zijn/haar medestudenten. Verder is het appartement perfect geschikt om aan te passen naar een heerlijke starterswoning met meer dan voldoende potentie om er een ruime woonkamer, eetgedeelte en slaapkamers te realiseren.

Indeling:

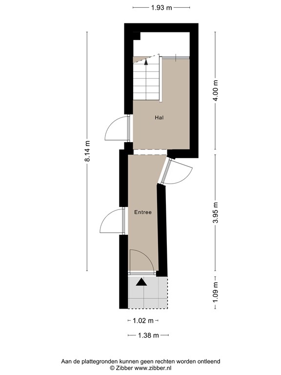
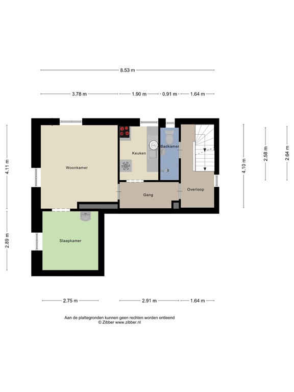
Via de fraaie entree met authentieke trapopgang betreedt u de woning, die zich uitstrekt over drie verdiepingen op de tweede, derde en vierde etage. Elke verdieping beschikt over een eigen woonkamer, slaapkamer en eenvoudige keuken, waardoor het pand zich uitstekend leent voor verschillende woonvormen – denk aan werken aan huis, verhuur, of een royale stadswoning met meerdere leeflagen. De aanwezige badkamer is eenvoudig uitgevoerd en voorzien van een douche en toilet.

Met een creatieve blik en enkele slimme ingrepen maakt u hier in korte tijd iets bijzonders van.

Wonen in het Spijkerkwartier

Het Spijkerkwartier is één van Arnhems meest geliefde wijken: levendig, groen en doordrenkt van historie. De Emmastraat is een rustige, karakteristieke straat, centraal gelegen op loopafstand van het centrum, station Arnhem Velperpoort, gezellige cafés, speciaalzaken en het Sonsbeekpark.

Deze wijk staat bekend om haar monumentale panden, betrokken bewoners en duurzame initiatieven. Hier woont u stads, maar toch rustig – met alles binnen handbereik.

In het kort:

- Ruime bovenwoning in voormalig graanpakhuis
- Indeling met drie verdiepingen: per etage een woonkamer, slaapkamer en keuken
- Gebruik van gemeenschappelijke binnentuin
- Veel daglicht
- Uitzicht op de Eusebiuskerk en het Spijkerkwartier
- Fraaie entree met klassieke trapopgang
- Eenvoudige badkamer met douche en toilet
- Rustige straat in een levendige, geliefde wijk
- Op loopafstand van het centrum, Steenstraat en parken
- Op twee minuten loopafstand van trein- en busstation Velperpoort
- (Klus)woning met volop potentie en karakter

Voor wie durft te dromen én te doen

Emmastraat 16-1 is een woning met een ziel. Met wat aandacht, visie en liefde wordt dit een parel op een toplocatie in Arnhem. Ideaal voor creatievelingen, stadsliefhebbers of ouders met studerende kinderen.

Koopovereenkomst:
Bij de verkoop wordt de standaard VBO koopovereenkomst gehanteerd. Indien nodig zal er een clausule worden opgenomen waaruit blijkt dat de verkoper niet de bewoner van de woning is geweest. Bij woningen welke ouder zijn dan 20 jaar, worden de asbestclausule en de ouderdomsclausule standaard opgenomen;

De bovengenoemde informatie hebben wij met de grootste zorg en de nodige zorgvuldigheid samengesteld. Onzerzijds wordt er echter geen enkele aansprakelijkheid aanvaard voor enige onvolledigheid, onjuistheid, omissie of anderszins, alsook voor de eventuele gevolgen daarvan. Alle opgegeven maten zijn zorgvuldig en professioneel opgenomen, maar wel indicatief.

Wanneer u geïnteresseerd bent in deze woning, dan kunt u de aanvraag digitaal indienen via zowel onze eigen website www.blinqmakelaars.nl als Funda.nl.
Voor vragen kun je telefonisch contact opnemen met ons kantoor met telefoonnummer 026-7114555.

Kaart

Kenmerken

Overdracht

Referentienummer
00551
Vraagprijs
€ 245.000,- k.k.
Status
Verkocht onder voorbehoud
Aanvaarding
In overleg
Aangeboden sinds
Maandag 9 februari 2026
Laatste wijziging
Woensdag 1 april 2026

Bouw

Type object
Appartement, bovenwoning
Woonlaag
1e woonlaag
Soort bouw
Bestaande bouw
Bouwperiode
1880
Type dak
Platdak

Oppervlaktes en inhoud

Woonoppervlakte
65 m²
Inhoud
316 m³
Oppervlakte overige inpandige ruimten
31 m²

Indeling

Aantal bouwlagen
3
Aantal kamers
6 (waarvan 3 slaapkamers)

Locatie

Ligging
Aan rustige weg

Energieverbruik

Energielabel
C

Vereniging van Eigenaren

Jaarlijkse vergadering
Ja
Periodieke bijdrage
Ja
Reservefonds
Ja
Opstal verzekering
Ja

Kadastrale gegevens

Kadastrale aanduiding
Arnhem Q 7246
Omvang
Appartementsrecht of complex
Eigendomsituatie
Eigen grond
Indexnummer
6

Media

Virtuele tour

Plattegronden