+55

Zeevaart 295 6846 LS Arnhem € 675.000,- k.k.

  • Woonhuis
  • 5 kamers
  • 4 slaapkamers
  • 1 badkamer
  • Bouwjaar 2008
  • 232 m² perceeloppervlakte
  • 167 m² gebruiksoppervlakte
  • Gestoffeerd
  • A Energielabel A

Beschrijving

Exclusief wonen op toplocatie in Schuytgraaf – luxe, ruimte, vrij uitzicht en een ruime mate van comfort

Welkom in deze royale en unieke eensgezinswoning, gelegen op een absolute toplocatie in de geliefde en kindvriendelijke wijk Schuytgraaf in Arnhem. Op loopafstand van de Rivers International School vormt deze woning de ideale thuisbasis voor (internationale) gezinnen en expats die op zoek zijn naar comfort, ruimte, hoogwaardige afwerking én een prachtig vrij uitzicht.

Een huis dat direct indruk maakt.

Vanaf het moment dat je binnenstapt, ervaar je de ruimte, het licht en de luxe die deze woning kenmerken. De vrije ligging zorgt daarbij voor een bijzonder gevoel van rust en privacy, met een open uitzicht dat bijdraagt aan de unieke woonbeleving. Met drie volwaardige verdiepingen en een doordachte indeling is dit een huis waar wonen, werken en ontspannen perfect samenkomen.

Begane grond – het kloppend hart van het huis
De stijlvolle en royale leefkeuken vormt het centrale middelpunt van de woning. Hier komen design en functionaliteit samen. De keuken is uitgerust met hoogwaardige inbouwapparatuur, waaronder een stoomoven, combi-oven, koffiemachine en inductiekookplaat. Dit is dé plek om uitgebreid te koken en samen te genieten.
Daarnaast beschikt de begane grond over een separaat toilet en een praktische, volledig ingerichte home-office – ideaal voor wie in alle rust thuis wil werken, met uitzicht op de groene omgeving.

Eerste verdieping – licht, ruimte en comfort met uitzicht
De eerste verdieping biedt een bijzonder ruime en lichte woonkamer, waar grote raampartijen niet alleen zorgen voor een overvloed aan daglicht, maar ook het vrije uitzicht optimaal tot zijn recht laten komen. Hier ervaar je een gevoel van ruimte en openheid dat zeldzaam is. Dankzij de slimme indeling is de leefruimte gescheiden van de keuken, wat zorgt voor rust en comfort. Ook bevindt zich hier een tweede toilet.

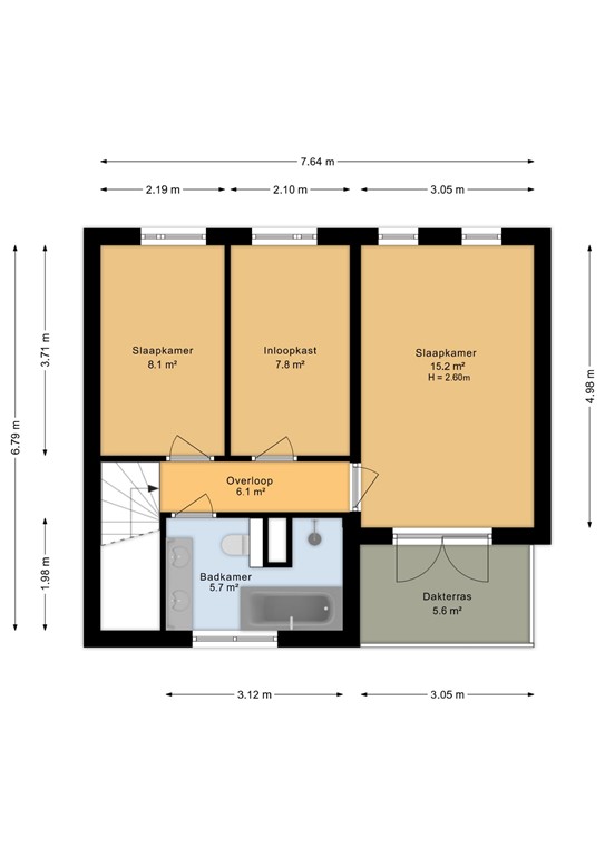
Tweede verdieping – rust, privacy en uitzicht
De bovenste etage is volledig ingericht als slaapverdieping en biedt drie volwaardige slaapkamers. De royale master bedroom beschikt over toegang tot een fijn balkon aan de voorzijde, waar je in alle rust kunt genieten van het vrije uitzicht – een perfecte plek om de dag te beginnen of af te sluiten.
De overige kamers zijn flexibel in te richten als kinder-, werk- of logeerkamer. De luxe badkamer is een echte eyecatcher, afgewerkt met hoogwaardige materialen en voorzien van een ligbad, inloopdouche, toilet en dubbele wastafels met stijlvol Italiaans design.

Uniek: zelfstandig gastenverblijf in de tuin
De fraai aangelegde achtertuin biedt volop privacy en vormt een rustige plek om te ontspannen. Ook hier profiteer je van de vrije ligging, zonder directe inkijk van achterburen. Het absolute hoogtepunt is het volledig zelfstandige gastenverblijf met eigen badkamer, kitchenette en woon-/slaapgedeelte – perfect voor logees, een au pair, inwonende kinderen of als inspirerende werkruimte.

Wonen in Schuytgraaf – modern, groen en ruim opgezet
Schuytgraaf staat bekend om zijn moderne en ruimtelijke opzet, met veel aandacht voor groen, water en leefkwaliteit. De wijk kenmerkt zich door brede lanen, open zichtlijnen en een prettige, vrije ligging van de woningen – wat bijdraagt aan het gevoel van ruimte en privacy.

Voor gezinnen is dit een ideale woonomgeving, met diverse scholen, speelvoorzieningen en sportfaciliteiten. De nabijheid van de internationale school maakt de wijk bovendien zeer geliefd bij expats. Daarnaast zijn winkels, horeca en openbaar vervoer uitstekend bereikbaar en ben je binnen enkele minuten in de natuur.

Kortom
Deze woning biedt een zeldzame combinatie van luxe, ruimte, privacy en een prachtig vrij uitzicht op een toplocatie. Een ideale gezinswoning waar comfort en kwaliteit samenkomen en waar je elke dag geniet van rust, licht en ruimte.

Bijzonderheden:

- Eensgezinswoning op toplocatie
- Vrij uitzicht en gunstige, vrije ligging
- Op loopafstand van internationale school
- Drie volwaardige verdiepingen
- Luxe leefkeuken met hoogwaardige apparatuur
- Praktisch en volwaardig home-office
- Drie ruime slaapkamers
- Balkon met vrij uitzicht
- Fraai aangelegde tuin met veel privacy
- Zelfstandig gastenverblijf met badkamer en kitchenette
- Gelegen in populaire, moderne en kindvriendelijke wijk

Interesse?
Neem vandaag nog contact op en plan een bezichtiging via onze website www.blinqmakelaars.nl. Ervaar zelf het vrije uitzicht, de ruimte en de luxe die deze woning te bieden heeft.

Kaart

Kenmerken

Overdracht

Referentienummer
00580
Vraagprijs
€ 675.000,- k.k.
Inrichting
Ja
Inrichting
Gestoffeerd
Aanvaarding
In overleg
Aangeboden sinds
Woensdag 15 april 2026

Bouw

Type object
Woonhuis, eengezinswoning, tussenwoning
Soort bouw
Bestaande bouw
Bouwperiode
2008
Dakbedekking
Bitumen
Type dak
Platdak
Isolatievormen
HR-glas
Muurisolatie
Spouwmuren
Vloerisolatie
Volledig geïsoleerd

Oppervlaktes en inhoud

Perceeloppervlakte
232 m²
Woonoppervlakte
167 m²
Inhoud
577 m³
Oppervlakte externe bergruimte
17 m²
Oppervlakte gebouwgebonden buitenruimte
5,6 m²

Indeling

Aantal bouwlagen
3
Aantal kamers
5 (waarvan 4 slaapkamers)
Aantal badkamers
1 (en 2 aparte toiletten)

Locatie

Ligging
Aan rustige weg

Tuin

Type
Achtertuin
Hoofdtuin
Ja
Oriëntering
Zuid-west
Staat
Prachtig aangelegd

Energieverbruik

Energielabel
A

Uitrusting

Warm water
Stadsverwarming
Verwarmingssysteem
Stadsverwarming
Ventilatie methode
Mechanische ventilatie
Keukenvoorzieningen
Inbouwapparatuur
Kookeiland
Badkamervoorzieningen
Dubbele wastafel
Inloopdouche
Ligbad
Toilet
Heeft airco
Ja
Heeft een balkon
Ja
Tuin aanwezig
Ja
Heeft schuur/berging
Ja
Heeft ventilatie
Ja

Kadastrale gegevens

Kadastrale aanduiding
Arnhem AF 2575
Perceeloppervlakte
232 m²
Omvang
Geheel perceel
Eigendomsituatie
Eigen grond

Brochure(s) en overige bijlagen

Zeevaart 295, 6846 LS ARNHEM (1) Download